- Home
- Content Library
- University of Washington The Center for Pediatric Dentistry
University of Washington The Center for Pediatric Dentistry
Center for Pediatric Dentistry - University of Washington
Dr. Joel Berg
Teaching Clinic Leads the Way with Advanced Technology
Imagine frazzled parents bringing their children into the dentist and having to navigate a clinic that was spread out across multiple massive buildings. Not an ideal situation for a parent or child. This was just one of the problems with the previous location of the University of Washington Center for Pediatric Dentistry, which was housed on the main campus in Seattle.
The buildings in which it operated were very old, windows were scarce, and the treatment areas were cramped, with just one stool in the corner for parents to sit while their child received treatment. The space was tight, making it challenging for the dental students who were providing care as part of their academic training and also difficult for the faculty who were instructing them.
The Center, a Partnership of the University of Washington and Seattle Children’s Hospital, moved to the Washington Dental Service Building, a spacious and bright location in Magnuson Park, three miles from the main campus.
The building had been gifted to the University and had been vacant for some time. It was occupied by the Navy in World War II, making it a historical building. This fact required additional coordination by the School planning team, contractors, architect, and the Henry Schein Special Markets team as each considered how to repurpose the building to become a state-of-the-art teaching and treatment facility. It took almost three years from start to finish, but the clinic opened in September 2010 in its new location.
Operatories Optimized for Comfort and Teaching
Today, the Center for Pediatric Dentistry operates more like a stand-alone community health center than a doctoral clinical program, even though it is truly both. It provides preventive care, restorative care, general anesthesia, and sedation dentistry for children from birth to age 18 and specialized treatment for children with special needs to age 20. It has the capacity to serve over 30,000 patients a year! Since it opened almost two years ago, it has seen its patient load increase from 20 patients a day to 100.
Henry Schein Equipment Specialist Scott Graversen, who was part of the team that worked on the design of the new office, explains: “Dr. Joel Berg, Professor and Chairman of the University of Washington Dental Program (and Dean of the Dental Program beginning August 2012), had a vision for the University of Washington Pediatric Program. It needed a facility with space and technology that was complementary to being a world-class leader in dental education and collaboration with the dental and medical community at large.”
The open-bay style operatories provide total flexibility to meet the needs of the doctoral
students and instructors while providing patient comfort and appeal.
Equipped with Pelton & Crane 1800 Chairs
and Helios Lights
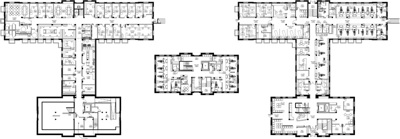
The first obstacle that the new building addressed was patient accessibility. Everything is housed in one location, making it easy to find and visible from the road, a huge change from its previous location. It has 32 treatment areas, including three surgical suites staffed and operated by Seattle Children’s Hospital, and 26 operatories on two floors. The Center has an open-bay design that is comfortable and big enough for parents with strollers, large families, and instructors who are overseeing the doctoral students. Three oral exam rooms round out the facility.
On any given day, 16 doctoral students rotate through the clinic, providing dental care as part of their clinical training to children from all over Seattle. The students have access to a well-designed facility that has equipment and technology that is well beyond what many dental offices have, exposing them to some of the most exciting advances in dentistry.
While all of that is impressive, this dental clinic is truly designed with its smallest patients in mind. It is light, bright, and filled with inviting, cheerful colors that welcome young children. All of the treatment pods are equipped with deluxe operatory equipment, including Pelton & Crane 1800 chairs and Helios lights. However, ask the patients and many will tell you their favorite piece of equipment is the computer screens that dance with images throughout the appointment.
“Our patients really like the computer screens and the availability of movies during their procedures,” said Dr. Berg.
But the screens serve as more than just entertainment value… they have become important tools for the dental team to share diagnoses and communicate treatment options visually. In the end, it helps parents better understand what is being recommended and why, leading to improved acceptance.
Partners and Vendors Share Passion for Expanding Oral Health Care
The previous clinic’s equipment was purchased in the 1970s, and it was clearly showing its age—another obstacle. Dr. Berg extended a personal invitation to Henry Schein Chairman and CEO Stanley Bergman to come and hear more about how he wanted to make the clinic into a model of excellence in clinical teaching and patient care. That led to a public bid process and the involvement of Henry Schein’s Special Markets team, which specializes in working with the unique needs and budgets of nonprofit organizations.
Henry Schein’s ongoing passion for increasing access to oral health care made this partnership a natural fit. The clinic courted manufacturers during the public bid, and it was evident that a number of industry-leading manufacturers, including Pelton & Crane, DEXIS, Gendex, Imaging Sciences International, Accutron, and Air Techniques, shared that passion and went out of their way to deliver their equipment within the budget and specifications of the dental program.
Digital Imaging Makes a Big Impact
Of all the new technology installed in the clinic, switching to digital imaging has had the greatest impact on care and productivity. DEXIS digital sensors and cameras provide high quality images in just a few seconds so doctors can share them with parents and patients with ease on the computer screens in each pod. The staff doesn’t have to wait for the film to develop or retake substandard X-rays, which means appointments can move along more smoothly. And because there is no need for film or chemicals, the clinic eliminates a costly expense and the hassle of cleanup.
“In a pediatric office, efficiency is key,” noted Dr. Berg. “Digital X-rays allow us to view an image within seconds.”
Digital imaging also leads to easier and faster insurance submissions, which in turn, results in more timely payments to the clinic. With a few keystrokes and the click of a mouse, a digital image can be attached to an insurance claim and sent out for reimbursement: a huge benefit for the patient and for the clinic.
i-CAT Leads to Growing Number of Referrals
Another advanced diagnostic tool housed in the Center for Pediatric Dentistry is the i-CAT conebeam system, which renders 3D images of all oral and maxillofacial features, so it is effective in every dental specialty, including the treatment of congenital defects and trauma. The i-CAT has led to an increase in referrals from private practices that do not have this state-of-the-art equipment.
All of the digital imaging technology is integrated with Dentrix practice-management software, which provides streamlined patient charting and easier scheduling. Thanks to the integration of Dentrix, the clinic is paperless.
When Dr. Berg was asked for advice for other doctors taking on the design and construction of a new office, he said, “You can never invest enough time and resources in the planning process.”
Henry Schein’s Special Markets team, along with the company’s medical division, worked together to implement Dr. Berg’s goals and vision into the clinic. Scott Graversen remembers: “The give and take, ups and downs of a multiyear project were challenging at times, but working toward the shared goal was rewarding. The Center for Pediatric Dentistry now has the capacity for increased patient access, enhanced diagnostic tools for providers, and an environment that is still very conducive to a doctoral teaching facility.”
Left to right: Dan Stalford, Regional Operations Manager; Ron Brown, Regional Manager; David Welch, Equipment Service
Technician; Eric Nielson, Equipment Service Technician; Steven Kennedy, Equipment Service Technician; Rochelle White, Field Sales Consultant; Scott Graversen, Equipment Sales Specialist; Joel Berg, DDS, MS–Director, The Center for Pediatric Dentistry; Martha Somerman, DDS, PhD–Dean, School of Dentistry, University of Washington; Roberta Greene, MS, PhD (honorary)–Chair, Washington Dental Service Foundation; Cindy Evans, RN, MN, MHA–Vice President, Ambulatory and Regional Services, Seattle Children’s Hospital
University of Washington Center for Pediatric Dentistry Floor Plan
Basement | Floor 2 | Floor 1





