- Home
- Content Library
- Dr. Joel Berg – The Center for Pediatric Dentistry University of Washington Seattle, Washington
Dr. Joel Berg – The Center for Pediatric Dentistry University of Washington Seattle, Washington
The Center for Pediatric Dentistry is a merger of the former pediatric dentistry clinics at the University of Washington and the Seattle Children’s Hospital.
The new clinic resides in the Washington Dental Services Building at the University of Washington. In order to respect the historically preserved building during the repurposing process, existing challenges were met with a combination of creativity and commitment that saw the premises emerge from nearly three years of design and planning into a facility that is beautiful, functional, and technologically on the front lines.
“We will see any child who needs pediatric dental care, but will focus on early intervention and prevention of dental disease for all children. Our mission is to have a first visit by the first birthday for all children [we care for].”
Henry Schein Dental’s unique market strategy and network in special markets make it an ideal provider for institutional healthcare facilities. Innovative solutions can be tailored to meet diverse, customized needs that reinforce an organization’s special point of view in providing services to their patients and the community.
“The Center will see patients from Seattle Children’s Hospital and those who have medical diagnoses and/or developmental anomalies,” notes Dr. Berg, Director.
Both Henry Schein Dental and its Medical Division worked together to coordinate the project’s activities. The Dental Group’s Specialists—Regional General Manager Ron Brown, Regional Operations Manager Dan Stalford, Field Sales Consultant Rochelle White, and Equipment Sales Specialist Scott Graversen and the Medical Division’s Specialists—Special Markets President Hal Muller, Director of Special Market Sales Chuck Jenkins, and Special Markets Technology Manager Marc Capots provided advice and support with an eye toward the Center’s current and future needs. Andrea Hight, Dental Special Markets Regional Manager and Virginia Harper, Medical Equipment Sales Specialist also contributed to this project.
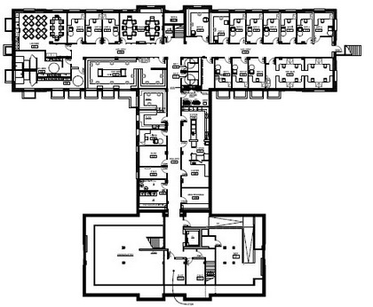
The Center’s floor plan includes a total of 32 treatment areas, which, when full capacity is reached, give the capability to care for a projected 30,000 patients per year. With an ergonomically sound layout to ensure comfortable and stress-free mobility during busy workdays; integrated practice- management systems to aid in both clinical and administrative efficiency; and state-of-the-art equipment choices that offer durability and reliability that are so necessary, this multifaceted/high volume dental healthcare facility is ready to take on a full schedule of patient care. The Center also has an ambulatory surgery center built into its facility.
“We are proud to have one of the most refined pediatric dental practices within an environment that will be the basis for an academic health center practice and a teaching clinic for...pediatric dentists of the future,” comments Dr. Berg. “[We are also implementing] a ‘pod’ concept that will allow us to create practices within the practice that utilize the same resources.”
“We will work to stay true to our commitment to see at-risk children—and be a resource for even those not making it to our Center,” comments Dr. Berg.
Technologically well integrated with a multipurpose design that gives the flexibility to accommodate reconfiguration as required, the facility should have little difficulty staying on top of a full range of activities while pursuing its fundamental aims as presented in its mission strategy. “The Center is now prepared to fulfill the need for increased access to quality pediatric healthcare,” notes Equipment Sales Specialist Scott Graversen. “Paperless and low maintenance with the latest in diagnostic tools and our continuous technical support, the Center can look forward to better serving its patients and the community.”
“We will work to stay true to our commitment to see at-risk children—and be a resource for even those not making it to our Center,” comments Dr. Berg. “Through developing best practices, we can convey to others all over the world better ways to deliver productive and efficient care to more children. We plan to create these solutions within the Center for Pediatric Dentistry.”
Featured Equipment for UW School:
Accutron Nitrous Oxide System
Air Techniques ScanX Digital Processor
Aribex Nomad Intra-Oral Camera
DEXIS
DEXcam Intra Oral Camera
Forest Delivery Carts
Gendex 9212 X-ray Digital Panoramic
i-CAT Cone Beam CT
Pelton & Crane 3000 Chairs
Pelton & Crane Delivery Systems
Pelton & Crane Helios lights
Pelton & Crane Renaissance Cabinetry
Pelton & Crane Delta Q Sterilizer
SciCan Statim Hydrim
Tuttnauer 3870












